Appartement 3 pièces de 72m² à Bourgoin-Jallieu

272.000 €
Favori

Description

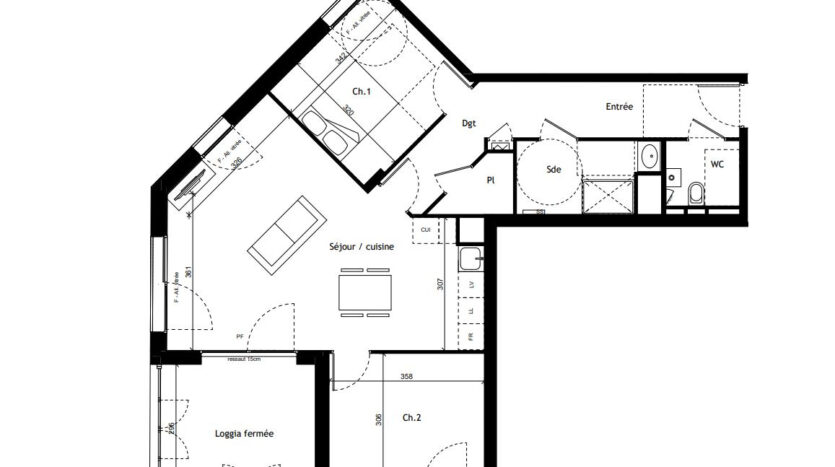
Magnifique appartement T3 de 72,67 m2 situé à Bourgoin-Jallieu (38300).
Cet appartement au rez-de-chaussée se compose :

D’un vaste séjour-cuisine de 30,33 m2
De 2 chambres : 10,87 m2 et 10,96 m2
D’une salle de bain de 5,07 m2
D’un WC séparé de 2,55 m2
D’une entrée de 4,63 m2
D’un dégagement de 6,40 m2
D’un placard de 1,85 m2
D’une loggia fermée de 10,54 m2

Prestations de qualité :

Carrelage 45×45 cm avec plinthes assorties dans toutes les pièces sauf chambres
Revêtement stratifié dans les chambres
Brise-soleil orientables motorisés
Chauffage et eau chaude individuels par chaudière gaz à condensation
Meuble de salle de bains avec plan vasque, miroir rétroéclairé
Sèche-serviettes dans la salle de bain
Placards équipés d’une tablette chapelière et d’une tringle
Cuisine équipée avec meubles hauts et bas, plan de travail, plaque vitrocéramique 3 feux, hotte aspirante
Visiophone couleur et badge Vigik

La résidence sécurisée offre :

3 immeubles de 3 à 4 étages
49 logements au total
Ascenseur desservant tous les niveaux
Parkings en sous-sol
Coeur d’îlot paysager
Locaux vélos dans chaque bâtiment

Situation idéale au coeur du quartier Saint Michel de Bourgoin-Jallieu, à proximité :

De la place Carnot et son marché
Des commerces, cinémas, cafés et restaurants
Du musée et de la médiathèque
De la gare (7 min à pied)
De la mairie (10 min à pied)

La résidence répond aux exigences de la réglementation thermique RT2012 avec une performance RT2012 -20%.
Pour plus d’informations et pour planifier une visite : 09 77 422 422 (appel non surtaxé)
Informations LOI ALUR :

Statut du négociateur : Agent immobilier
Classe énergie et climat : B
Montant estimé des dépenses annuelles d’énergie pour un usage standard : NC
Bien soumis au statut de la copropriété
Nombre de logements : 27
Les honoraires sont à la charge du vendeur
Quote part annuelle (moyenne) : NC

Les informations sur les risques auxquels ce bien est exposé sont disponibles sur le site Géorisques : www.georisques.gouv.fr
Saisissez cette occasion exceptionnelle dès maintenant ! Pour de plus amples informations et pour planifier une visite, veuillez contacter Maxime, votre agent immobilier au 06.77.08.69.93.

Diagnostic de performance énergétique

DPE non communiqué Consommations non exploitables
* Dont émissions de gaz à effet de serre
GES non communiqué Consommations non exploitables

Géorisques

Les informations sur les risques auxquels ce bien est exposé sont disponibles sur le site Géorisques https://www.georisques.gouv.fr

Département :
Code postal: 38300
Pays: France

Property Id: 128618
Prix: 272.000 €
Taille de la propriété: 72.00 m2
Pièces: 3
Chambres: 2
Emission GES: B(10)

Autres caractéristiques
Boxe
Garage

Le transport
Supermarchés
Écoles
Restaurants
Pharmacies
Hôpitaux

Contactez moi

¹Les données collectées à partir de ce formulaire sont nécessaires pour nous permettre de répondre à votre demande. Elles sont collectées et traitées informatiquement par le responsable de traitement et peuvent être transmises à nos services internes ainsi qu’à nos partenaires intervenant dans l’instruction de votre demande. Vous disposez sur vos données de droits d’accès, de rectification, d’opposition, que vous pouvez exercer en nous contactant à dpo@enmodeimmo.com. Pour plus de détails, consultez notre page politique générale de confidentialité. Conformément à l’article L 223-1 du Code de la consommation, l’utilisateur est informé qu’il a la possibilité de s’inscrire sur www.bloctel.gouv.fr pour s’opposer à toute démarchage par téléphone, à l’exception des relations clients déjà établies.

Similar Listings

Appartement 3 pièces de 73.74m²  à Bourgoin-Jallieu
Appartement

Appartement 3 pièces de 73.74m² à Bourgoin-...

321.000 €
Découvrez ce magnifique appartement 3 pièces au 1er étage, d'une surface habitable de 73,7 ...
2 73.74 m2détails
Appartement 3 pièces de 70m²  à Bourgoin-Jallieu
Appartement

Appartement 3 pièces de 70m² à Bourgoin-Jal...

292.000 €
Magnifique appartement 3 pièces situé au 1er étage d'une surface habitable de 70,08 m2 se ...
2 1 70.00 m2détails

Comparer les annonces

MAXIME GOUMAS