Description
Un cadre de vie exceptionnel dans une résidence bioclimatique
Situé dans un quartier moderne et verdoyant, cet appartement T3 bénéficie d’un emplacement idéal : à 10 minutes à pied du centre-ville, à 300 mètres de la gare TER/TGV et à proximité immédiate des commerces et écoles.
Caractéristiques du bien
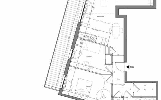
Superficie habitable : 67,89 m2
Loggia : 11,00 m2, idéale pour profiter d’un extérieur agréable
Séjour/cuisine : 28,94 m2, lumineux et spacieux
Chambres :
Chambre 1 : 12,69 m2
Chambre 2 (avec placard) : 11,56 m2
Salle de bain : 4,31 m2
WC indépendant : 1,33 m2
Entrée : 9,06 m2
Prestations et confort
Résidence neuve labellisée ‘Bâtiment Biosourcé’
Architecture bioclimatique favorisant une isolation thermique et acoustique optimale
Menuiseries bois avec capotage aluminium et volets roulants électriques
Sol stratifié dans les pièces de vie et de nuit, carrelage dans les pièces humides
Résidence sécurisée avec espaces verts et jardin maraîcher
Un environnement privilégié
À 350 m de la fontaine des Éléphants et du centre historique
Gare TER/TGV à 300 m (Annecy en 53 min, Grenoble en 41 min)
Arrêt de bus au pied de la résidence
Commerces, restaurants et écoles accessibles à pied
Grand jardin maraîcher et espaces partagés dans la résidence
Informations LOI ALUR
Statut du négociateur : Agent immobilier
Classe énergie et climat : RT 2020
Montant des dépenses annuelles d’énergie : NC
Bien soumis au statut de la copropriété
Honoraires à la charge du vendeur
Informations sur les risques disponibles sur www.georisques.gouv.fr
Contact : Maxime Goumas – 06.77.08.69.93
Diagnostic de performance énergétique
Géorisques
Les informations sur les risques auxquels ce bien est exposé sont disponibles sur le site Géorisques https://www.georisques.gouv.fr
