Description
Magnifique T3 de 66,61 m2 avec balcon de 15,55 m2 dans une résidence labellisée ‘Bâtiment Biosourcé’ .
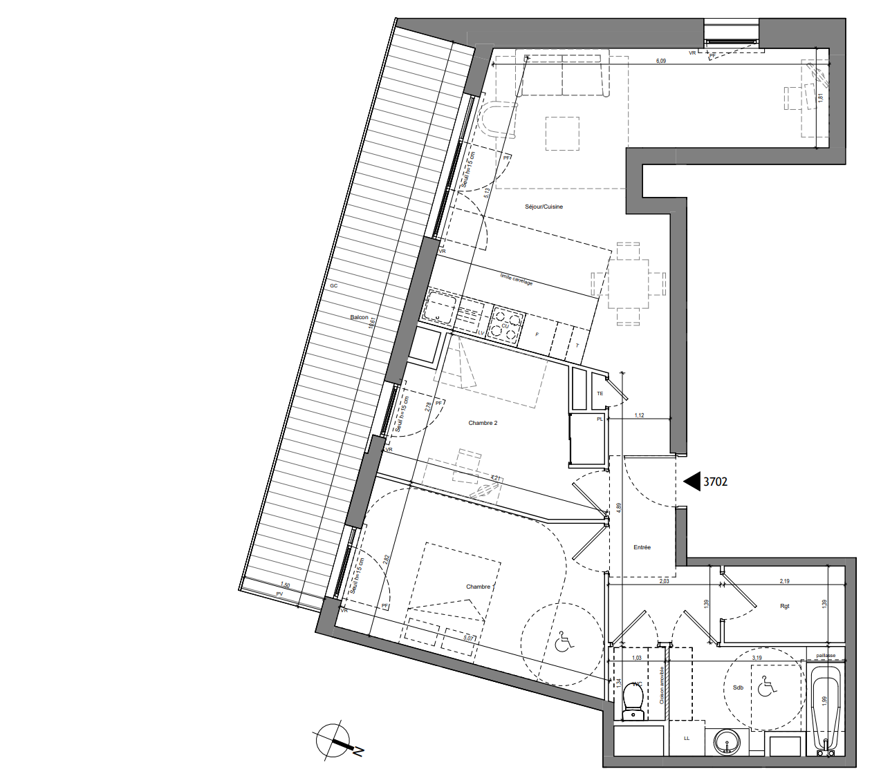
APPARTEMENT
Séjour/cuisine : 26,31 m2
Chambre 1 : 13,36 m2
Chambre 2 + placard : 9,76 m2
Salle de bains : 6,01 m2
WC : 1,35 m2
Entrée : 6,78 m2
Rangement : 3,04 m2
Balcon : 15,55 m2
SITUATION PRIVILÉGIÉE
À 350 m de l’hypercentre de Chambéry et de la célèbre fontaine des Éléphants
À 300 m de la gare TER/TGV de Chambéry-Challes-les-Eaux
Arrêt de bus ‘Charmilles’ au pied de la résidence (ligne 1)
À 450 m de la Place de la Gare (supermarché, bureau de tabac, restaurants…)
À 950 m du Centre commercial Les Halles de Chambéry (marché couvert, cinéma multiplexe, boutiques…)
Accès rapide aux autoroutes A41 et A43 (7 min)
Grenoble à 41 min en train, Annecy à 53 min
PRESTATIONS DE QUALITÉ
Construction mixte bois/béton à haute valeur environnementale
Appartement bi-orienté ou traversant
Sol stratifié dans les pièces de vie et de nuit
Carrelage dans les pièces humides
Salle de bain faïencée, équipée de son meuble vasque et de son sèche-serviettes
WC suspendu
Volets roulants électriques dans toutes les pièces
Menuiseries extérieures bois avec capotage alu ou tout alu
Isolation optimisée pour limiter les déperditions et des charges énergétiques très faibles
ENVIRONNEMENT
Résidence avec un grand jardin maraîcher de 900 m2
Serres agricoles exploitées par un maraîcher local
Bacs à compostage, carrés potagers et verger
Véritable parc arboré favorisant la biodiversité
Espace commun avec terrasse en rooftop, dont l’usage sera défini en concertation avec les habitants
Locaux vélos équipés surdimensionnés
Atelier de réparation et de bricolage au RDC
Programme labellisé ‘Bâtiment Biosourcé’ niveau 1 avec recours massif aux énergies renouvelables (panneaux photovoltaïques et géothermie sur nappe).
INFORMATIONS LOI ALUR
Statut du négociateur : Agent immobilier
Classe énergie et climat : RT 2020
Montant des dépenses annuelles d’énergie pour un usage standard : NC
Bien soumis au statut de la copropriété
Les honoraires sont à la charge du vendeur
Citation partie annuelle (moyenne) : NC
Les informations sur les risques associés à ce bien sont disponibles sur le site Géorisques : www.georisques.gouv.fr
Contact : Maxime Goumas – 06.77.08.69.93
Diagnostic de performance énergétique
Géorisques
Les informations sur les risques auxquels ce bien est exposé sont disponibles sur le site Géorisques https://www.georisques.gouv.fr

